3000平米北京格灵深瞳信息技术有限公司-办公空间-北京翰翔建筑装饰装修公司

翰翔建筑装饰北京办公室装修
北京写字楼装修二维码北京办公室装修电话

办公空间 餐饮休闲 酒店会所 商业空间 娱乐健身 其他案例 法律行业 游戏行业 医美行业 汽车行业 纺织服装行业 文化传媒行业 房地产行业 养老保险金融行业
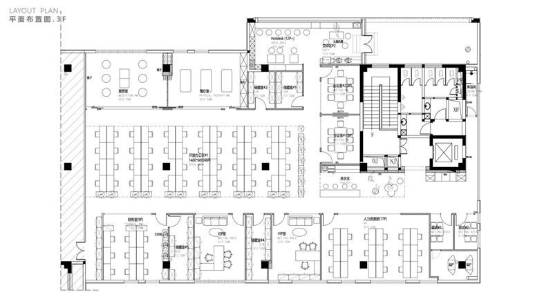
3000平米北京格灵深瞳信息技术有限公司

项目名称:北京格灵深瞳信息技术有限公司

项目面积:3000平米

工程造价:260万

项目地址:北京市海淀区永泰庄北路1号天地邻枫创新产业园

北京翰翔建筑装饰工程有限公司

400-090-8580
400-090-8580010-858976257*24小时客服电话
139-1127-5915(微信同号)
copyright© 北京翰翔建筑装饰工程有限公司 版权所有 京ICP备12048938号-1

友情链接:北京办公室装修 北京办公室设计 北京写字楼装修 武汉装修  装修资讯网 软膜天花  北京seo优化 防伪标签 消防车价格 淄博网站建设 龟纹石 袋式过滤器 短信群发软件 大闸蟹礼券 北京餐厅设计  绿化草坪  隔音房 PPP项目全流程服务 商业计划书 木屋别墅 论文发表 短信群发  群发短信 工商代办    钢骨架轻型网架板  群发短信 石家庄消防验收 热风幕  不锈钢板网

免费报价